Інформація в цьому оголошенні застаріла

SH-149-339
Без комісії

Продам 2-поверховий будинок

Розташування: Харків, Олексіївський напрямок, Флоринка
5 Кімнат
218 м2
12 сот.
Ціна
140 000 $

Інформація

Без комісії! Продам 2-поверховий будинок в с. Флоринка, 5 хвилин машиною від станції метро Перемога.

Код об'єкта - SH-149-339

Відмінне розташування, поряд супермаркет Метро, ТРЦ Planeta Mall, поряд великий спальний район Олексіївка з безліччю шкіл та дитячих садків, асфальтований під'їзд до будинку.

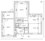
Загальна площа – 218 кв.м:
Перший поверх: - кухня-вітальня із виходом на терасу;
- вбиральня;
- санвузол;
- Гараж.
Другий поверх: - чотири окремі кімнати;
- санвузол.

Будівельні матеріали та конструкції:
пиріг стіни: керамічний блок, утеплювач мінеральна вата, штукатурка;
покрівля: металочерепиця, утеплена;

Стан - під чистове оздоблення, виконана штукатурка, стяжка підлоги, панорамне скління.

Ділянка – 12 соток.
Комунікації: вода – свердловина, каналізація – септик, газ – по вулиці, електрика – 20 кВт, 380В.

Вартість – $140 тис.

140 000 $ вартість об'єкта
642 $ ціна за м2
218 м2
12 сот.
5 кімнат
2 К-ть поверхів

Параметри

свердловина Вода:
можлива газифікація Газ:
автономне Опалення:
місцева Каналізація:
асфальт Під’їздна дорога:

Додатково

Дата оновлення інформації: 06.11.2021 16:32;