Інформація в цьому оголошенні застаріла

SH-126-601

Продам 2-поверховий будинок

Розташування: Харків, Олексіївська, Олексіївський напрямок, Олексіївка, Мирослава Мисли вул.
4 Кімнат
220 м2
5 сот.
Ціна
175 000 $

Інформація

Продам новий будинок 220 кв.м поряд з метро Олексіївська 10 хв. пішки.

Код об'єкта SH-126-601

Будівельні конструкції та матеріали:
пиріг стіни: цегла, утеплювач мінеральна вата, декоративна штукатурка;
дах: дерев'яна кроквяна система з металочерепицею;
металопластикові вікна з енергозберігаючим склопакетом;
фундамент: залізобетонний.

Євроогорож по периметру.

Стан - «під чистове оздоблення», з введенням усіх комунікацій.

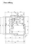
Загальна площа 220 кв.м, житлова – 100 кв.м, 3 окремі спальні, санвузол, кухня-студія 30 кв.м.

- цокольний поверх (з можливістю гаража),
1-й поверх: передпокій, кухня студія 41 кв.м з виходом на криту веранду, кабінет, санвузол.
2-й поверх: три спальні (одна з виходом на балкон 20 кв.м), санвузол.

Комунікації: електрика 20 кВт, каналізація та водопостачання центральні.

Ділянка 5 соток, приватна власність.

Вартість - $175 тис. + комісія АН

Інфраструктура

Громадський транспорт: метро - Олексіївська (10 хв. пішки);
175 000 $ вартість об'єкта
795 $ ціна за м2
220 м2
5 сот.
4 кімнат
2 К-ть поверхів

Параметри

центральна Вода:
немає Газ:
електричне Опалення:
центральна Каналізація:
3 Висота стелі:
металочерепиця Дах:
цегла Матеріал стін:
залізобетон Матеріал перекриттів:
асфальт Під’їздна дорога:

Додатково

Власність: приватна;
Дата оновлення інформації: 17.05.2024 13:43;