SF-3-305-996

Продам 2-кімнатну квартиру, ЖК «Сокольники»

Розташування: Харків, Ботанічний сад, П'ятихатський напрямок, Сокільники, Професорська вул., 30
2 Кімнат
65 м2
3/16 3
Ціна
62 000 $
Комісія:
5%

Інформація

Продам 2-кімнатну квартиру в житловому комплексі бізнес-класу «Сокільники», вул. Професорська, 30, в районі Лісопарку.

Код об'єкту SF-3-305-996.

Житловий комплекс розташований у престижному та екологічно чистому районі міста на перехресті вулиць Професорської та Освітянської, поряд з вул. Дерев'янко. Поруч знаходиться авторська школа та дитячий садок Бойко, спортивний комплекс «TETRA», тенісний клуб «Central Park», парк Горького та Лісопарк.
Закритий внутрішній двір із газонами, пішохідними зонами, дитячими та спортивними майданчиками, місцями для відпочинку.

Забудовник «Житлобуд-1»
Будинок зданий. Продаж по документам.

12 поверх 16-поверхового будинку.
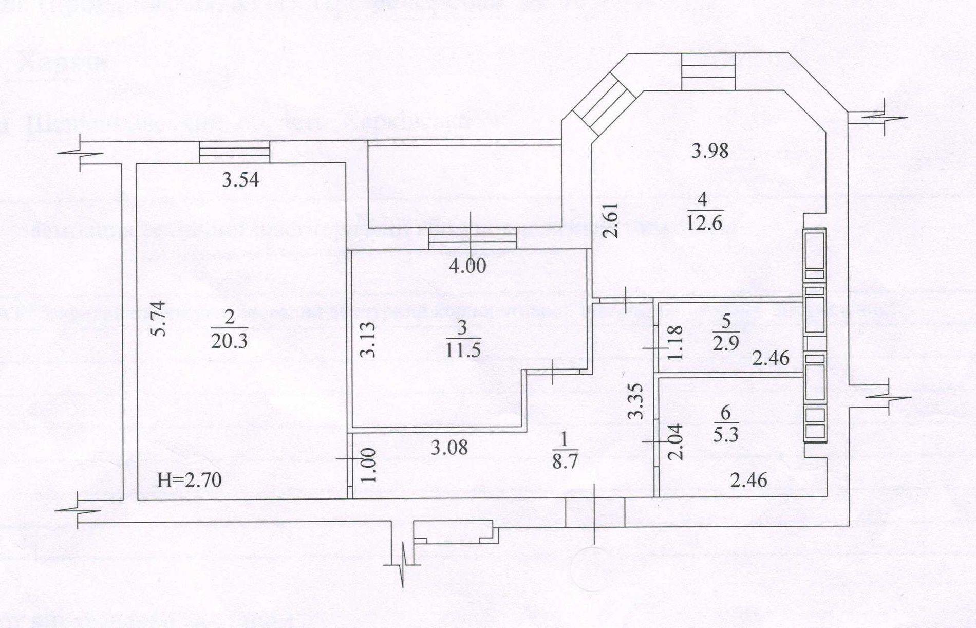
Загальна площа квартири 65,2 кв.м: кухня-вітальня 12,6 кв.м, дві ізольовані кімнати: спальня з гардеробною та кабінет, лоджія, 2 санвузла. Вид з вікон на Лісопарк.

У квартирі свіжий дизайнерський ремонт, ніхто не жив.


Вартість $62 тис. + послуги АН

Інфраструктура

Громадський транспорт: метро - Ботанічний сад (40 хв. пішки, 15 хв. на транспорті);
62 000 $ вартість об'єкта
951 $ ціна за м2
65.20 м2
2 кімнат
3 Поверх
16 К-ть поверхів

Параметри

центральна Вода:
немає Газ:
центральне Опалення:
цегла Матеріал стін:

Додатково

Забудовник: Житлобуд-1;
Дата оновлення інформації: 18.04.2026 01:22;