Інформація в цьому оголошенні застаріла

SF-2-761-885

Продам 3-кімнатну квартиру в новобудові, ЖК «Архітекторів»

Розташування: Харків, Перемога, Олексіївський напрямок, Олексіївка, Домобудівельна вул., 7
3 Кімнат
81 м2
6/9 поверх
Ціна
105 000 $
Комісія:
5%

Інформація

Продам 3-кімнатну квартиру в ЖК Архитекторів, Олексіївка, М Перемоги, вул. Домобудівна 7.

Код обєкта - SF-2-761-885

У пішій доступності метро Перемога, зупинки наземного транспорту. Кілька великих супермаркетів - АТБ, Посад, Рост, Клас, Чудо, ринок, тренажерні зали та салони краси, школи, дитячі садки. Дитячий майданчик, упорядкована придомова теріторія. Лісопаркова зона.

6-й поверх 9-поверхового цегляного будинку.

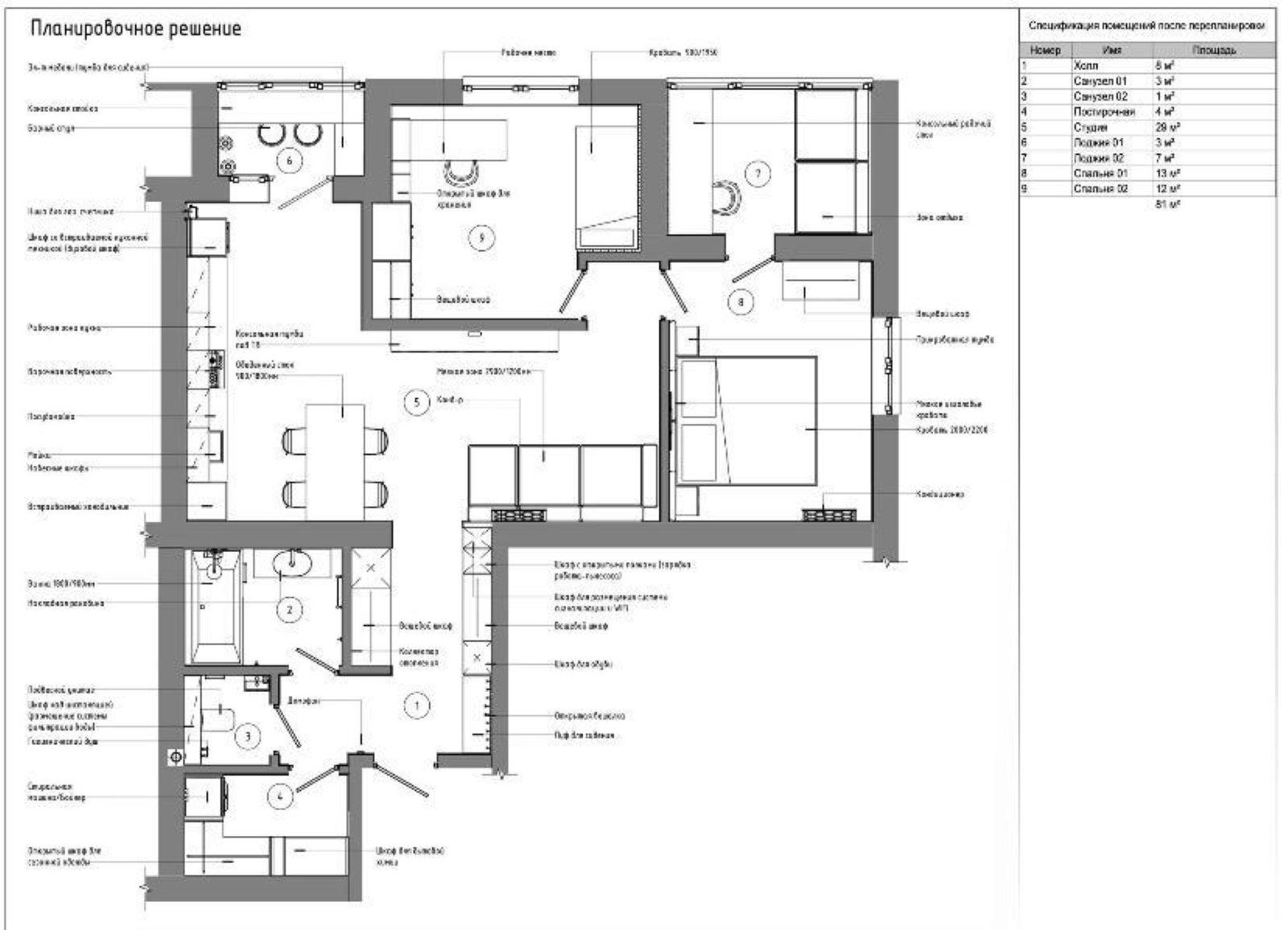
Загальна площа 81 кв.м: кухня-вітальня - 29 кв.м з виходом на лоджию - 3 кв.м (вбудована кухня з посудомийкою, індукційною плитою, мікрохвильовкою, окремостоячий інверторний холодильник Samsung, тепла підлога), спальня - 13 кв.м, дитяча - 12 кв.м, лоджия-кабінет 7 кв.м, два санвузли (вбудовані меблі, унітаз Grohe, гігієнічний душ, рукомийник, змішувач Grohe, тепла підлога, акрілова ванна villeroy and boch 180см, електрична сушарка для рушників), пральня-гардеробна - 4 кв.м(вбудовані меблі, вентиляція, тепла підлога, бойлер 100л, пральна і сушильні машини Bosch), передпокій - 8 кв.м (дві вбудовані шафи, вішак з мʼяким пуфом для взуття, цифровий домофон, тепла підлога).

Сучасний свіжий ремонт.
Стіни: чистове оздоблення шпатльоване скловолокно, біла фарба Flutex.
Підлога: в один рівень, кварцвініл під дерево, з фаскою.
Стеля: дитяча, кабінет і спальня - подвійний гіпсокартон, решта - натяжна стеля. Колір білий матовий. Шумоізоляція у всіх кімнатах.
Двері: Secret Doors прихованого монтажу.
Електрика: централізовний щиток з керуванням освітлення і споживачів. Автомати Schneider. Реле напруги з затримкою увімкнення.

Опалення і вентиляція: 2 кондиціонери Cooper&Hunter в спальні і кухні-вітальні, 7 зон теплої підлоги з керуванням через застосунок і цифрові термостати. Сталеві радіатори. Вентиляція з таймером в туалеті і ванній.
Інтернет: Maxnet.

Вартість об’єкта- $105 тис. + послуги АН

Інфраструктура

Громадський транспорт: метро - Перемога (26 хв. пішки, 10 хв. на транспорті);
105 000 $ вартість об'єкта
1 296 $ ціна за м2
81 м2
3 кімнат
6 Поверх
9 К-ть поверхів

Параметри

центральна Вода:
центральне Опалення:

Доброустрій

Ліфт: пасажирський, вантажний;
Краєвид із вікна: двір, вулиця, ліс;

Додатково

Забудовник: Житлобуд1;
Дата оновлення інформації: 21.12.2025 21:05;