SF-3-311-439

1 room flat in newbuilding for sale, Residential complex «Marshal»

Location: Kharkiv, Palats Sportu, Novy doma, Palace of Sports, the metro station district, Heroyiv Kharkova ave., 144/2
1 Rooms
38 m2
5/10 5
Price
$50,000
Commission:
5%

Information

Продам 1-кімнатну квартиру в новобудові ЖК Маршал.Метро Палац Спорту 3 хвилини пішки.

Код обʼєкта: SF-3-311-439

5-й поверх 10-поверхового цегляного будинку.
Квартира знаходиться в середині будинку — тепла та економна.

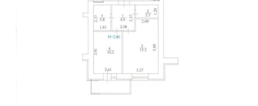
Загальна площа: 38 квадратних метрів.
Кухня:10 квадратних метрів
Кімната:15 квадратних метрів
Висота стелі: 2.8

Автономне опалення — контроль витрат та комфорт у будь-яку пору року, не кутова, тепла
Сучасний ремонт
Простора кухня з новими меблями та побутовою технікою

Світла кімната з можливістю зонування
Якісне на підлозі покриття, нейтральний інтер’єр.

Поруч магазини, супермаркети, аптеки, ринок, парк.
Школи та дитячі садки.
Зручний виїзд у будь-яку частину міста

Ідеальний варіант як для проживання, так і під інвестицію.
Співпрацюю

Вартість: 💲 50 тис.+ послуги АН

Infrastructure

Public transport: subway - Palats Sportu (3 min. on foot, 1 min. by transport);
Education: school, kindergarten;
Banking services: branch bank, atm, settlement platform, currency exchange office;
Consumer services: mini-market, supermarket, market, parking near the house, pharmacy, clinic field, hairdressing saloon, post office;
Relaxation services: fitness center, garden, playground;
Catering facilities: cafe, restaurant, fast food, dining hall, bar;
$50,000 property price
$1,316 price per m2
38 m2
1 rooms
5 Storey
10 Storeys

Parameters

central Water:
autonomous Heating:
brick Wall material:

Object state

Windows: metal-plastic;
Outer doors: armored, good condition;
Doors: wood;

Improvement

Lift: freight;
View from the window: city view, courtyard, street;
Household appliances: gas stove, refrigerator, air vent, washing machine in the bathroom, conditioner;
Security: intercom, armored door, video monitoring, palisade;

Additionally

Yard type: closed yard;
Ownership: private;
Information update date: 29.04.2026 21:39;